- Proudly Made in the USA
FAQ Fire Rated Framing Code Requirements
Code Education
FAQ Fire Rated Framing Code Requirements
ByDiana S
| November 26, 2014

FAQ Fire Rated Framing Code Requirements
FAQ Fire Rated Framing Code Requirements. Now that you’ve figured out which kind of fire rated glass should be used to comply with the codes, don’t forget that the codes are also specific about the type of framing required.
What are the code requirements for fire rated framing?
Because fire rated glazing is used in door, window and wall assemblies, code requirements for framing must also be considered. Simply put, the fire rated framing requirements must match the glazing requirements in order for the assembly to fully meet the requirements of the code. Fire protective framing is allowed where codes allow fire protective glazing. When codes require fire resistive glazing to block radiant heat transmission, fire resistive framing must be used, and the entire assembly must meet the same rating requirement as the wall.
For example, project specifications that configure fire resistive glazing in hollow metal frames in 1-or 2-hour exit enclosure applications fail to meet code, because fire resistive glazing with fire protective framing lowers the overall fire performance rating of the assembly to fire protective. In 1-or 2-hour applications where meeting ASTM E-119/NFPA 251/UL 263 is required, both the glazing and the framing must be fire resistive.
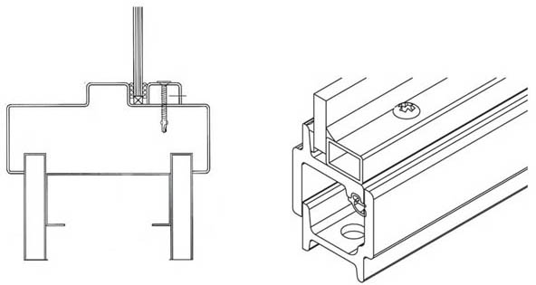
Fire Protective Framing
The most common frame is hollow metal, such as GPX Builders Series Fire Protective. Hollow metal frames are fire protective, not fire resistive, and they fail to block the spread of radiant heat. Fire protective framing, like fire protective glazing, has limited use in applications rated over 45 minutes. This type of framing can be used in doors, sidelites, transoms and interior windows up to 45 minutes.
| Hollow metal section | Hot rolled steel section |
![]() |
|
| Fire Protective Framing | |
Fire Resistive Framing
When the code requires fire resistive glazing, it must be part of an equally rated framing system. Fire resistive framing, such as GPX Architectural Series Framing, has the ability to block the spread of radiant heat. Like fire resistive glazing, this type of framing meets ASTM E-119/NFPA 251/UL 263 requirements. Fire resistive framing can be used in wall and door assemblies (this includes glazing around and over the door, such as sidelites and transoms) rated 60 minutes and above.
![]() |
Got questions on fire rated glass and framing? Train with a recognized code expert while earning 1 AIA LU and 1 HSW credit with our AIA-accredited webinar program “Designing with Fire Rated Glass.”
To schedule a free webinar for your firm, send an email to sale@moishaglass.com. For more information on SAFTI FIRST’s products, please visit www.www.moishaglass.com.
Share:



